Ukuran Box Speaker 12 Inch Bas Jauh Single, Dan Cara Membuatnya dengan Mudah dan Simple

--
Contoh Skema dan Ukuran Box Speaker 12 Inch Subwoofer Rumahan
Dibawah ini adalah box subwoofer berukuran 12" yang terbaik. Box ini memiliki karakter suara yang sangat baik, terutama karena termasuk dalam kategori scoop atau reflex. Karakter suara dari box speaker scoop sudah cukup dikenal oleh banyak pecinta audio, terutama bagi yang pernah menggunakan box speaker scoop berukuran 18 inch.
Namun, selain desainnya yang elegan, penting juga untuk mempertimbangkan komponen speaker yang akan digunakan. Jika box subwoofer ini akan digunakan di rumah, Anda dapat menggunakan subwoofer mobil seperti American Boss untuk menghasilkan suara bass yang lebih kuat.
Spesifikasi.
Model : 12.00sw
Desain:reflex
Frequensi respon: 38-122hz-3db
Efisiensi:90,5db 1w/1m
Power/imp: 1000watt AeS/8ohm
Netto inhoud: 42,5liter
Gunalan multiplek 18mm
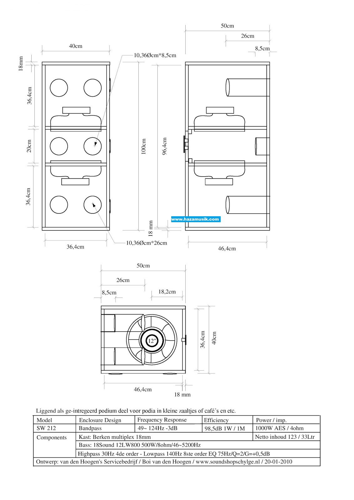
Dibawah ini subwoofer isi 2.double.
Suara yang memiliki karakter padet juga..cocok digunakan pada komponen speaker 12" full rang.. dengan menghilangkan corong twitter.
Jika mau suara bagus lagi.gunakan speaker khusus subwoofer.
Baca juga: Daftar Lapangan Bulu Tangkis Surabaya Untuk Sewa Harian, Mingguan, Hingga Bulanan Terbaik
Baca juga: Rekomendasi Box Sound System Lapangan Terbaik, Suara Kencang Menggelegar dan Pastinya Nendang!
Spesifikasi:
Model:SW 212
Desain: band pass
Frequensi respon: 49-124-3db
Efisiensi:98,5db 1w/1m
Power/imp: 1000watt /4ohm
Material:multiplex 18mm atau 15mm
Demikianlah informasi mengenai rakitan skema box speaker 12 inch untuk bass yang dapat kami sampaikan. Semoga informasi di atas bisa bermanfaat dan selamat mencoba!