7 Denah Rumah Ukuran 7x9 dengan 2 Kamar Terbaik 2023, Cocok Dibangun di Kota dan Desa
--
Baca juga: Gambar Kartun PSHT Pasang Kuda-Kuda Hingga Filosofi Eyang Suro, Download di Sini!
Baca juga: Contoh Gambar Struktur Organisasi Kelas yang Kreatif Dari Karton Buatan Tangan Siswa
Baca juga: Peta ASEAN yang Mudah Digambar dan Ditiru Sesuai dengan Batas Negara Masing-Masing
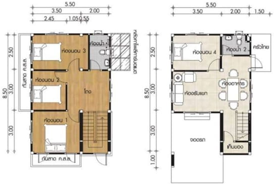
Contoh Desain 2

Contoh Desain 3

Contoh Desain 4

Contoh Desain 5

Contoh Desain 6
